- Главная
- Проекты домов
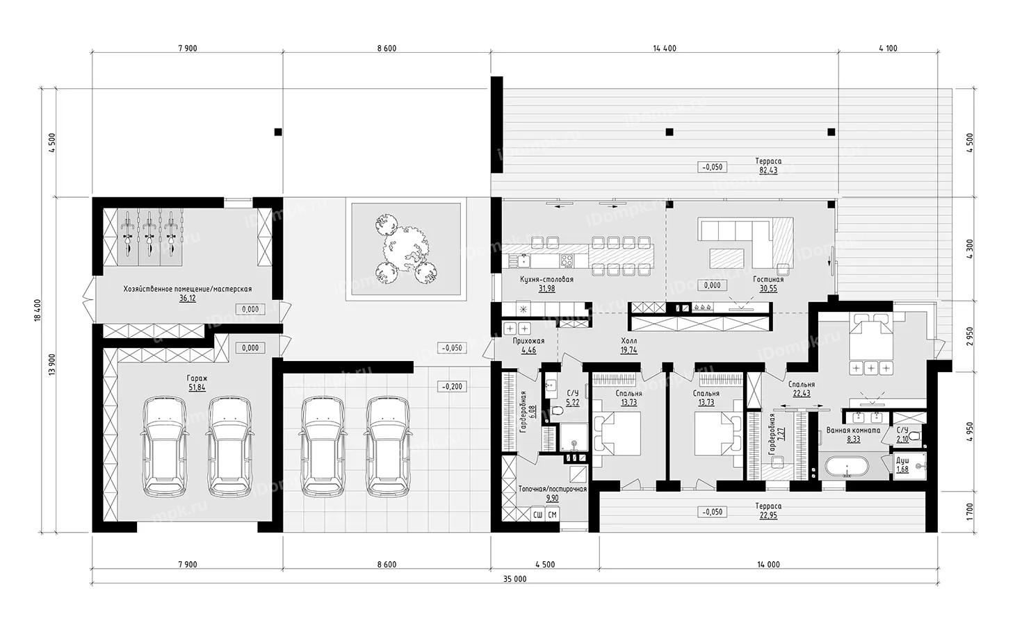
- p3052gh
Проект большого одноэтажного дома с 3 спальнями, плоской крышей, навесом и гаражом
Проект дома p3052gh может быть изменен в соответствии с вашими пожеланиями и/или адаптирован под ваш участок. Стоимость доработок оценивается индивидуально.
Состав проектной документации
Архитектурный раздел
- общие данные по проекту, включая спецификацию основных строительных материалов;
- поэтажные планы;
- план кровли;
- фасады;
- разрезы;
- конструкции полов;
- ведомости отделки;
- узлы и детали;
- спецификации заполнения оконных и дверных проемов.
Конструктивный раздел
- общие данные;
- схема расположения фундаментов;
- кладочный план;
- схема расположения перекрытий;
- схема расположения стропил;
- схема расположения перемычек;
- план лестницы;
- основные узлы и сечения;
- детальные спецификации.
Инженерные сети не входят в указанную стоимость. Если вы хотите дополнительно приобрести пакет инженерных сетей, то уточняйте их стоимость у наших менеджеров - 8 800 707 10 66
Электрооборудование
- общие данные;
- схема электросети;
- планы поэтажного освещения и электрооборудования;
- схема заземления;
- схема системы уравнивания потенциалов;
- план выполнения ввода в дом;
- спецификации оборудования, изделий и материалов.
Отопление и вентиляция
- общие данные – пояснительная записка;
- поэтажная разводка труб отопления и отопительных агрегатов;
- схема отопления;
- спецификации оборудования и материалов.
Водоснабжение и канализация
- общие данные – пояснительная записка;
- поэтажная разводка канализационных труб, и труб водоснабжения;
- схема систем водоснабжения;
- схема систем канализации;
- спецификации оборудования и материалов.
Бесплатная доставка осуществляется во все регионы России. В страны СНГ доставка оплачивается отдельно. Стоимость зависит от страны и курьерской службы. Сроки и стоимость доставки уточняйте по телефону +7 (495) 175-82-78
Если доставка печатной версии проекта в вашу страну не возможна, то мы отправим на ваш e-mail электронную версию проекта в формате .pdf
Самостоятельно забрать документацию можно в наших офисах. Если проект вам нужен срочно, то вы можете отправить курьера стороннего сервиса к нам в офис, при условии, что вы выбрали проект нашего бюро (номер проекта начинается с id).
- Наличными в офисе компании*;
- Перевод с карты на карту;
- Перевод на расчетный счет компании.
* – если вы выбрали проект нашего бюро (номер проекта начинается с id)
Индивидуальное проектирование по нескольким готовым проектам
Нравится наружная отделка дома, но не удовлетворяет планировка или наоборот? Спроектируем индивидуально дом на основе двух или трех проектов.
800р/м2
Изменение проекта под любой архитектурный стиль
Вас полностью устраивают планировочные решения, но нужно чтобы дом приобрел четкий и ясный архитектурный стиль. Напишите нам! Реализуем в течении 20 дней.
Индивидуально
Посадка дома на участок
Привязка дома к участку осуществляется только при наличии схемы участка и таблицы с метражом по периметру. Необходимо для подачи уведомления.
от5000руб.
Инженерные сети
Инженерные сети можно приобрести в типовом исполнении (от 20000 р за ОВК) или же заказать в индивидуальном порядке (800 р/кв).
от20000руб.
Замена фундамента
Замена фундамента осуществляется только при наличии отчёта инженерно-геологических изысканий. Для монолитной ж/б плиты данный отчет не требуется.
25000руб.
Замена на дерево
Замена стенового блочного материал на профилированный, клеёный брус или деревянный каркас всего дома или только второго этажа.
от45000руб.
Замена стенового материала
Стеновой блочный материал может быть заменён на другой тип блока (газобетон, керамоблок, арболит, керамзитобетон) или другую толщину.
15000руб.
Замена наружной отделки
Наружная отделка может быть заменена с мокрого фасада, отделанного штукатуркой (или комбинированного) на лицевой кирпич и наоборот.
от15000руб.
Бесплатный подбор отделочных и кровельных материалов
Не нравятся материалы наружной отделки и/или кровли? Приезжайте к нам в гости, и вы самостоятельно можете выбрать необходимые отделочные решения.
Бесплатно
Технический надзор на каждом этапе строительства
Компания iDomPK предлагает услуги технического надзора при покупке данного проекта дома. Услуга предоставляется бесплатно, если строительство ведем мы.
Индивидуально

