- Главная
- Проекты домов
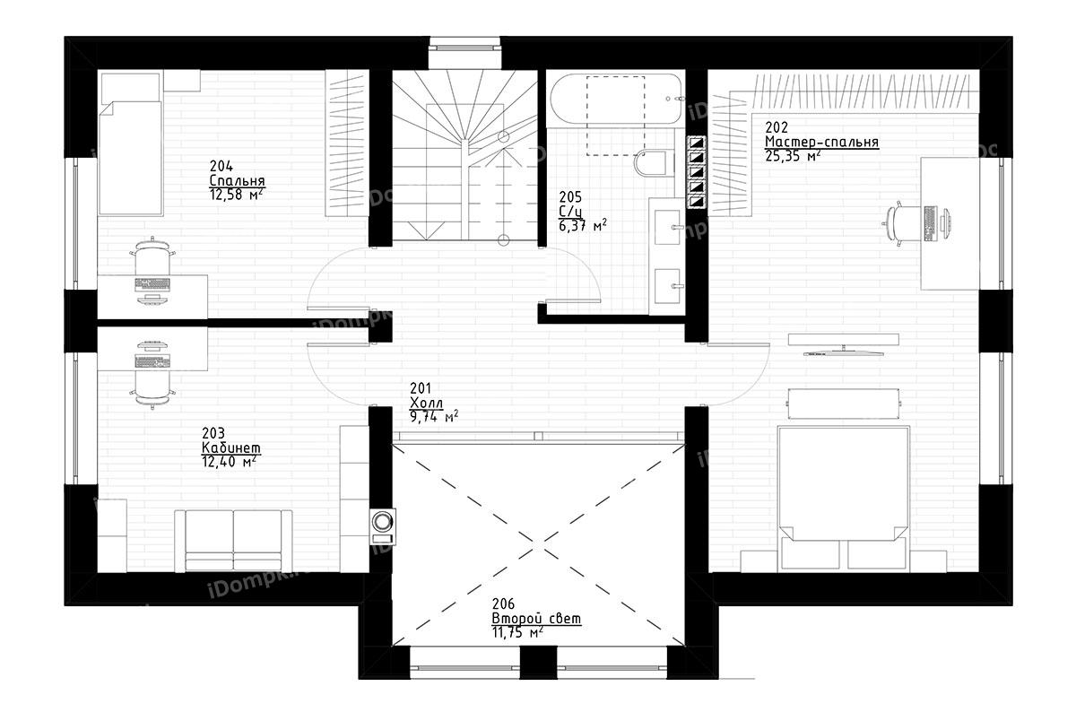
- p3048gn
Проект дома до 150 кв с мансардой, кабинетом, 3 спальнями и вторым светом
Проект дома p3048gn может быть изменен в соответствии с вашими пожеланиями и/или адаптирован под ваш участок. Стоимость доработок оценивается индивидуально.
Состав проектной документации
Архитектурный раздел
- Общие данные
- Фасады
- Ведомость наружной отделки фасадов
- План закладных деталей
- Ввод и вывод коммуникаций
- Маркировочные планы
- Отделочные планы
- Кладочные планы
- Схема раскладки блоков
- План кровли
- План кровли навесов
- Ведомость основных элементов кровли
- Разрезы
- Узел цоколя, узлы монтажа оконного блока
- Узел примыкания кровли к стене, к вентканалу, 3д виды кладки, выполнение проёма в кладке, узлы армирования кладки
- Экспликация полов
- Ведомость оконных и оконно-дверных конструкций
- Ведомость оконных и дверных проёмов
- Спецификация элементов заполнения проёмов
- Сечения вентиляционных каналов
Конструктивный раздел
- Общие данные
- Посадка фундамента на инженерно-геологический разрез (опционально)
- Схема расположения утепления основания
- Схема расположения опалубки фундаментных плит
- Схема расположения опалубки ребер фундаментных плит
- Схема расположения армирования нижней зоны фундаментной плиты
- Схема расположения армирования верхней зоны фундаментной плиты
- Схема расположения армирования ребер фундаментных плит
- Схема расположения арматурных выпусков под ж/б сердечники колонн
- Спецификация элементов армирования плитного фундамента
- Схема расположения плит пола по засыпке. Ступени. Армирование
- Схема расположения монолитных сердечников колонн террасы
- Армирование лицевого кирпича. Деформационные швы (опционально)
- Схема расположения перемычек
- Спецификация элементов монолитных перемычек
- Схема расположения монолитного пояса
- Схема расположения мауэрлата и прогонов террасы
- Спецификация к схема расположения мауэрлата и прогонов террасы. Сечения
- Схема расположения деревянных балок перекрытия (опционально)
- Спецификация к схеме расположения деревянных балок перекрытия (опционально)
- Схема расположения лежней и стоек
- Схема расположения прогонов
- Схема расположения стропил
- Спецификация элементов стропильной системы
- Схема расположения армирования верхней зоны плиты покрытия (если плоская крыша)
- Спецификация элементов армирования плит покрытия (если плоская крыша)
Бесплатная доставка осуществляется во все регионы России. В страны СНГ доставка оплачивается отдельно. Стоимость зависит от страны и курьерской службы. Сроки и стоимость доставки уточняйте по телефону +7 (495) 175-82-78
Если доставка печатной версии проекта в вашу страну не возможна, то мы отправим на ваш e-mail электронную версию проекта в формате .pdf
Самостоятельно забрать документацию можно в наших офисах. Если проект вам нужен срочно, то вы можете отправить курьера стороннего сервиса к нам в офис, при условии, что вы выбрали проект нашего бюро (номер проекта начинается с id).
- Наличными в офисе компании*;
- Перевод с карты на карту;
- Перевод на расчетный счет компании.
* – если вы выбрали проект нашего бюро (номер проекта начинается с id)
Индивидуальное проектирование по нескольким готовым проектам
Нравится наружная отделка дома, но не удовлетворяет планировка или наоборот? Спроектируем индивидуально дом на основе двух или трех проектов.
800р/м2
Изменение проекта под любой архитектурный стиль
Вас полностью устраивают планировочные решения, но нужно чтобы дом приобрел четкий и ясный архитектурный стиль. Напишите нам! Реализуем в течении 20 дней.
Индивидуально
Посадка дома на участок
Привязка дома к участку осуществляется только при наличии схемы участка и таблицы с метражом по периметру. Необходимо для подачи уведомления.
от5000руб.
Инженерные сети
Инженерные сети можно приобрести в типовом исполнении (от 20000 р за ОВК) или же заказать в индивидуальном порядке (800 р/кв).
от20000руб.
Замена фундамента
Замена фундамента осуществляется только при наличии отчёта инженерно-геологических изысканий. Для монолитной ж/б плиты данный отчет не требуется.
25000руб.
Замена на дерево
Замена стенового блочного материал на профилированный, клеёный брус или деревянный каркас всего дома или только второго этажа.
от45000руб.
Замена стенового материала
Стеновой блочный материал может быть заменён на другой тип блока (газобетон, керамоблок, арболит, керамзитобетон) или другую толщину.
15000руб.
Замена наружной отделки
Наружная отделка может быть заменена с мокрого фасада, отделанного штукатуркой (или комбинированного) на лицевой кирпич и наоборот.
от15000руб.
Бесплатный подбор отделочных и кровельных материалов
Не нравятся материалы наружной отделки и/или кровли? Приезжайте к нам в гости, и вы самостоятельно можете выбрать необходимые отделочные решения.
Бесплатно
Технический надзор на каждом этапе строительства
Компания iDomPK предлагает услуги технического надзора при покупке данного проекта дома. Услуга предоставляется бесплатно, если строительство ведем мы.
Индивидуально


